Bosch Indukcijska kuhalna plošča z intergrirano napo PXX801D67E Serie 8

2.190,00 2.639,00

Indukcijska kuhalna plošča z integrirano napo združuje dva aparata v enega za popolne rezultate kuhanja

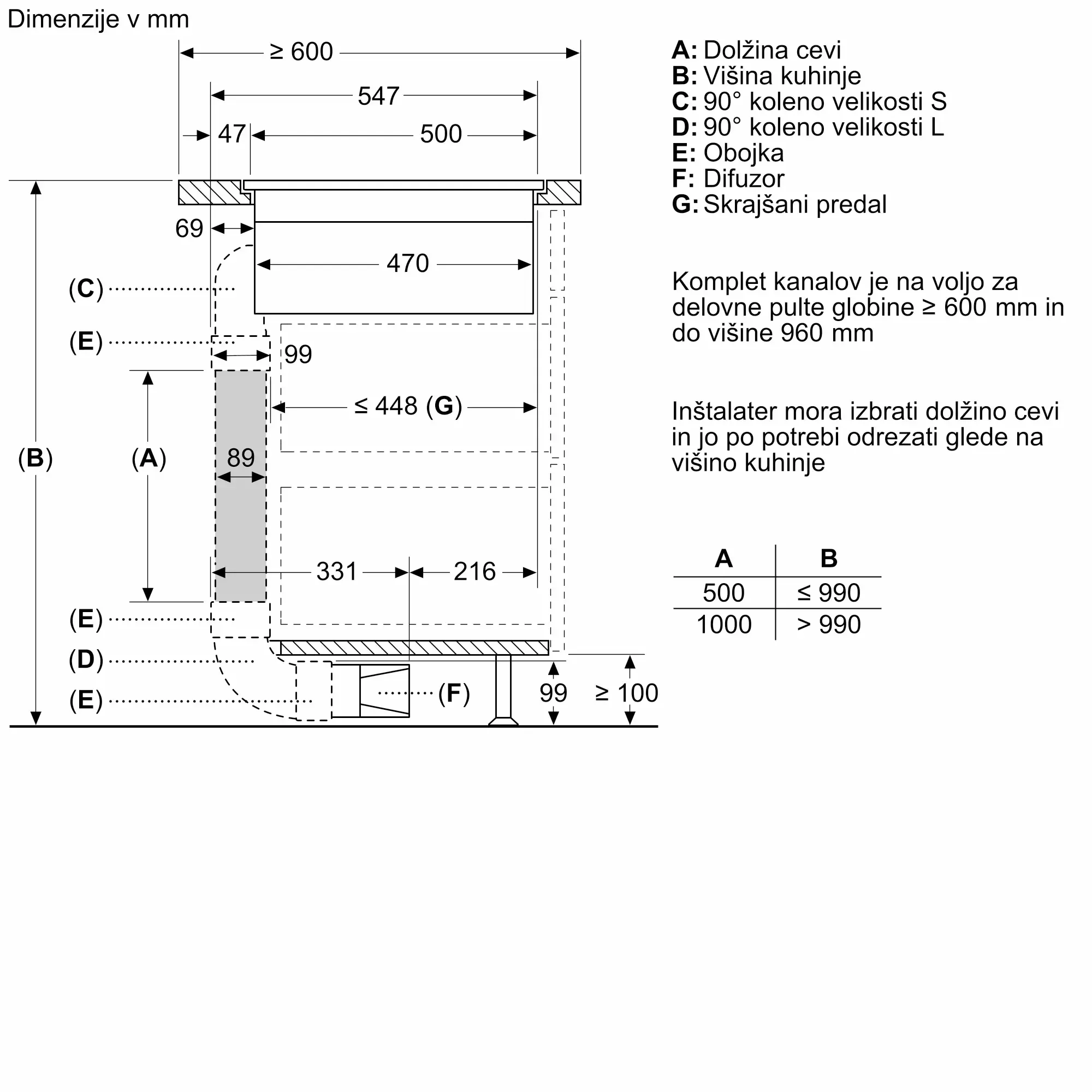
Kuhalna plošča z integrirano napo: odstrani paro in vonjave kuhanja neposredno pri viru

Ključne prednosti:

  • DirectSelect Premium: obsežen in intuitiven uporabniški vmesnik na dotik.

  • FlexInduction: več prilagodljivosti na kuhališču za velike lonce in ponve.

  • PerfectAir senzor: samodejni nadzor nastavitev za maksimalno zmogljivost nape pri nizki stopnji hrupa.

  • PerfectCook ready: preprečuje prekomerno kuhanje in prevretje z natančno regulacijo temperature kuhanja - senzor možno dokupiti kot dodatni pribor.

  • PerfectFry: za popolno praženje živil zahvaljujoč senzorskemu nadzoru s 5 stopnjami moči.

  • Funkcija območij Easy Flex: prilagodi kuhališča skladno z vašimi potrebami.

  • Daljinsko diagnosticiranje: spletna analiza in odprava težav brez obiska servisa.

  • Flush-Top Frame: kuhalna plošča je popolnoma v ravni s kamnitimi in granitnimi delovnimi pulti.

  • MoveMode: razdeli kuhališče na tri nivoje moči za vretje, kuhanje in nežno kuhanje.

  • PowerBoost: do 35 % hitrejše segrevanje na vaši indukcijski kuhalni plošči v primerjavi z najvišjo stopnjo.

  • Avtomatski prenos nastavitev: nastavitve kuhališča se samodejno prenesejo, ko premaknete posodo na kuhališču.

  • QuickStart: takojšnji začetek ob izbrani zaželeni stopnji kuhinji.

  • ReStart: obnovi nastavitve kuhališča v primeru nenamernega izklopa kuhališča.

  • Timer s funkcijo samodejnega izklopa: po preteku nastavljenega časa izklopi dodeljeno kuhališče.



    Akcija:

    *Vsi, ki v obdobju od 16. 9. 2025 do 28. 2. 2026 kupite enega izmed izbranih vgradnih aparatov, ga registrirate ter izpolnite obrazec za vračilo denarja, boste na svoj račun prejeli 200€ vrnjene kupnine.

    *Do vračila kupnine so upravičene fizične osebe, ki izbrani aparat kupijo v Sloveniji. Več podrobnosti o promociji pa najdete tu.

    Več: https://www.bosch-home.si/sl/mkt-product/kuhanje-in-pecenje/kuhinjske-nape/indukcijske-kuhalne-plosce-z-integrirano-napo/PXX801D67E